济南品茶spa论坛入口,上海外卖品茶工作室51一品茶楼论坛 ,滁州龙凤茶楼论坛地址,楼凤阁栖凤楼论坛春风阁(全国信息)

采购公告

您的位置: 首页 >采购公告>详细内容

综合布线询价采购公告

来源:网络 作者:不详 编审: 发布时间:2012-02-13 浏览次数: 【字体:
分享到:

柳州职业技术学院综合布线询价采购公告

序号

名称

参考规格、型号

数量

单位

单价

总价

备注

1

六类网络综合布线

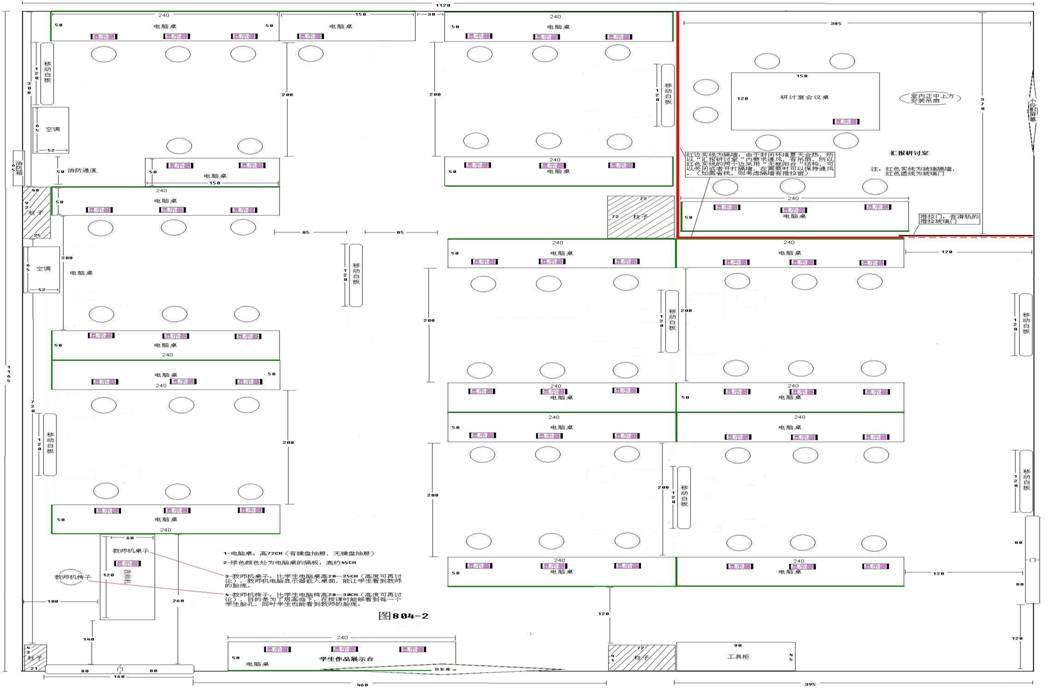
六类网络线,根据实际场地施工(场地布局图见附件)

58.00

2

投影调整施工、材料费

根据实际场地施工(场地布局图见附件)

1.00

总价

总金额(大写):

报价商(公章): 联系人: 电话:

要求:

1、资质要求:报价商应为国内注册的具有独立法人资格的经济实体,具备对公账号。

2、报价供应商须按上述要求提供符合有关国家标准产品的全新产品,所投及所供产品必须等于或高于招标公告参数要求。

3、报价货物质保期不少于2年,质保期内免费维修、更换配件。

4、成交供应商须提供终身维护,如在使用中发生质量问题或故障,成交人接到通知后2小时内响应,8小时内到达现场维修,24小时内修复;如在24小时内不能修复的,免费提供款式相同的替代品。

5、交付使用期:自成交通知书要求签订合同之日起 10日内安装调试完毕并交付使用。

6、交货地点:柳州职业技术学院,成交供应商负责免费送货,上门安装。

7投标文件包括本报价函(加盖报价商公章),报价商工商营业执照复印件、税务登记证复印件、法定代表人身份证复印件和委托代理人身份证复印件(委托代理时提供)。

9、本项目无预付款,我院验收合格、供货方开具发票后10个工作日付款。

8、投标商自行打印本报价函进行投标报价,报价为最终报价,本报价函填写好后的投标文件用文件袋密封并在封口处贴封条并加盖公章(密封见图样),于2012年2月20日上午10:30前送至柳州职业技术学院(柳州市社湾路28号)后勤与资产管理处105室,联系电话:0772-3156307,逾期无效。

技术参数咨询人:蒙老师:13667728182(工作时间:周一至周五上午8:-11::45,下午3:-6点);

柳州职业技术学院

2012年2月14日


附件下载:综合布线询价采购公告.DOC

×

用户登录